Contactos
Vila AzulRua das Andorinhas 10
Chamada para a rede fixa nacional
Chamada para a rede móvel nacional central@vilaazul.pt
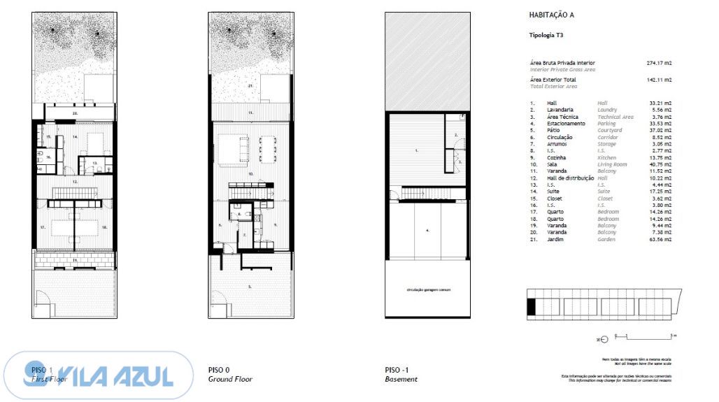
Moradia T3, 3 frentes, em Construção Arcozelo - Vila Nova de Gaia
Apresentamos uma excelente oportunidade de adquirir uma moradia de excelência, inserida num condomínio exclusivo de 16 unidades, localizado em Arcozelo, Vila Nova de Gaia. Em fase de construção, esta propriedade combina conforto, privacidade e uma localização privilegiada, a apenas 10 km do centro do Porto e próximo às principais atrações da região, como a Praia de Miramar, a Capela do Senhor da Pedra, os Passadiços da Ribeira do Espírito Santo e o renomado Clube de Golfe de Miramar.
Características do Empreendimento:
Condomínio com 16 moradias, cada uma com jardim privativo e estacionamento dedicado.
Ambientes amplos e luminosos, com grandes janelas e varandas que proporcionam uma conexão harmoniosa com o exterior.
Área verde extensa ao redor, promovendo tranquilidade e contato com a natureza.
Final previsto para o primeiro semestre de 2028.
Descrição da Moradia T3:
Três quartos, incluindo uma suíte master, projetados para aproveitar ao máximo a luz natural.
Acabamentos de alta qualidade: pavimentos em madeira nobre, caixilharia Technal com corte térmico, bancadas em Silestone, loiças sanitárias Roca e torneiras Hansgrohe.
Cozinha totalmente equipada com eletrodomésticos Siemens ou similares: forno, placa de indução, exaustor, micro-ondas, frigorífico side-by-side, congelador e máquina de lavar loiça.
Sistemas de climatização por conduta Daikin e bomba de calor aerotérmica para água quente.
Infraestrutura para carregamento de veículos elétricos e toalheiros elétricos.
Ambiente tranquilo e natural, ideal para quem busca qualidade de vida.
Serviços e comodidades ao alcance: supermercados, escolas, hospitais.
Excelente acessibilidade às principais vias de comunicação: A1, A29 e centro do Porto, seja de carro ou comboio.
Condições de Aquisição:
CPCV: 5%
Início da obra: 10%
Estrutura: 10%
Caixilharia: 10%
Escritura: 65%
Para mais informações, entre em contacto connosco e agende uma visita.
Helena Mendes
962878342
Vila Azul Imobiliária